13 呉服店2 「店前売」と巨大店舗
「店前売」の徹底
三井の呉服部門である三井越後屋(以下、越後屋)では、「現金掛け値なし」の商法(→04 現金掛け値なし)と「店前売」をモットーに商売をしていた。店前売とは店頭販売のことで、現金売を原則としていた。一方、江戸時代の一般的な取引は掛売(ツケ)だった。これは踏み倒しのリスクがあり、越後屋では避けたい商売だったが、近世では一般的な商売慣行ゆえに掛売での販売も少なくなかった。
たとえば、寛政年間(1790年代)の越後屋では「店前売」の割合が大きく落ち込み、大きな問題になっていた。京本店は改革案を提示したり、江戸の重役らと書状のやりとりをしたり、江戸の重役が上京して協議したりしている。越後屋は「店前売」を中心とした販売に重点をおくために、絶え間ない努力を続けていた。
売場と売場数
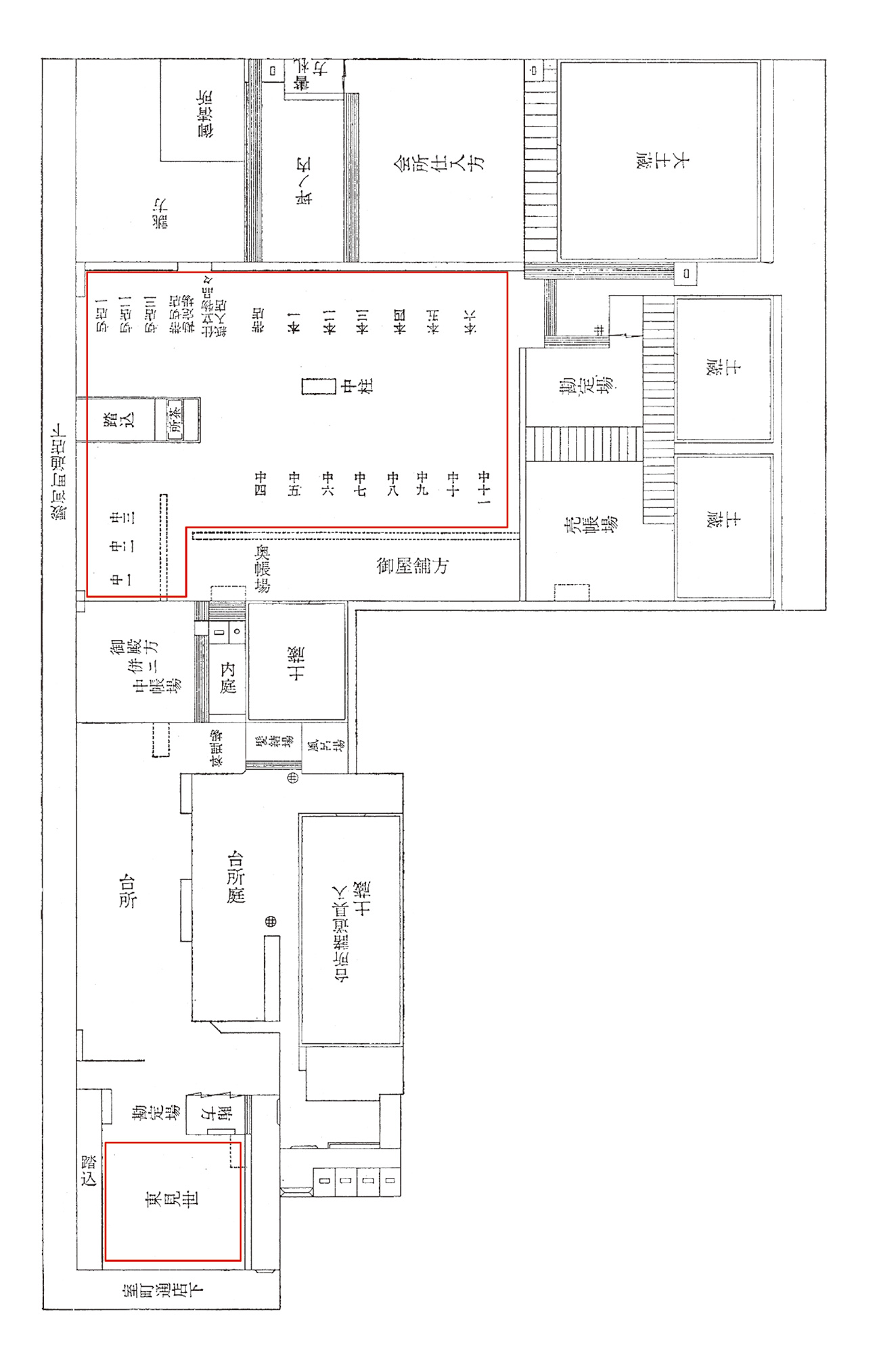
「店前売」の最前線は各店舗の中に設置してある接客空間であり、これを売場といった。売場は1軒2軒と数えていた。各売場には仕切られた物理的な施設があるわけではないが、それぞれに担当の手代(→19 奉公人1 昇進と報酬)が配属され、売場の手代は競いながら「店前売」に励んでいた。たとえば江戸本店には「本見世」や「東見世」といったブロックがあり、それぞれに複数の売場があった(→江戸本店の平面図)。元禄3年(1736)段階で12軒の売場があり、明和3年(1766)には29軒あった。これが確認できる売場の最大数である。売場数は増減するが、江戸本店には概ね20軒以上あった。
売場と接客
越後屋では様々な規則が作られている(→20 奉公人2 生活と管理)。たとえば、子供に対して、客にはすぐにたばこを出し火入や茶を用意すること、客の目の前には立たないこと、売場担当者の側に付き従い万引に注意を払うこと、手すきのときは売場で行儀良く待機することなどを定めたものもある。これらの規則は定期的に手代に読み聞かせられていた。一方で、越後屋の店舗改革を行う際、しばしば店内で接客する手代の態度も問題となっている。
様々な部署
店内には売場だけでなく、得意先回りをする屋敷方、事務を行う売帳場や勘定場、加工等を行う誂方など、営業に関する部署があった。店には手代を賄う巨大な台所もあり、大量の商品や記録類を収める土蔵も隣接していた。店の2階には通りに面して広大な廊下があった。ほかにも重役や三井同苗が江戸に出向いた際に使う部屋、商談や会議で使うであろう部屋などもあった。
巨大店舗
これら多数の売場や部署を抱えていた越後屋の店舗は極めて巨大であった。一般的な商家の間口が2、3間(約4~6メートル)程度ともいわれているが、江戸本店の場合、間口は最大規模で東西36間(約65メートル)あった。江戸で間口が30間を超える呉服店は、越後屋江戸本店以外に大丸や岩城桝屋などわずかであった。
19世紀の狂詩集である『江戸名物詩初篇』に「両側一町、三井が店、小僧判取り、帳場遙なり」という詩がある。前半では江戸本店と対面の向店とをあわせた駿河町の越後屋の威容を詠み、後半では、判取り(金品を授受した証として証印をもらうために歩きまわること)の小僧の向かう帳場は遙か遠くにみえると表現して、広大な店内を描いている。越後屋に代表される巨大な呉服店は、江戸や大坂といった巨大都市の象徴的存在であった。

越後屋の江戸本店の店内の様子を描いた絵画。作者は歌川豊春である。遠近法を用いており、また天井も高く描くことで、広い店内を見事に表現している。江戸本店の「東見世」という売場を東側から西側に向けて見ている。店内には複数の売場があり、各売場に担当奉公人を配置していた。売場の天井には売場担当者の名前を記した札を下げていた。この絵にも、天井から吊された衣類の見本や、部署の名前を記載した札が描かれている。男女を問わず店内に客が上がり、あちこちにある売場で手代が商談や品定めに応じ、子供がお茶出しや商品の出し入れに駆け回っている様子がみてとれ、江戸本店の賑わいをうかがい知ることができる。

宝暦7年(1757)以前の様子を描いたもの。今の三井本館の場所にあたる。図の左側が南で、駿河町通をはさんで対面に向店があった。向店の場所は今の日本橋三越本店にあたる。江戸本店は数度にわたり増改築している。のちの時期の平面図では台所の位置が西側に移り、店内の売場のレイアウトも異なるなど、店内部の様子も変化している。図に入れている赤線の囲みは売場である。